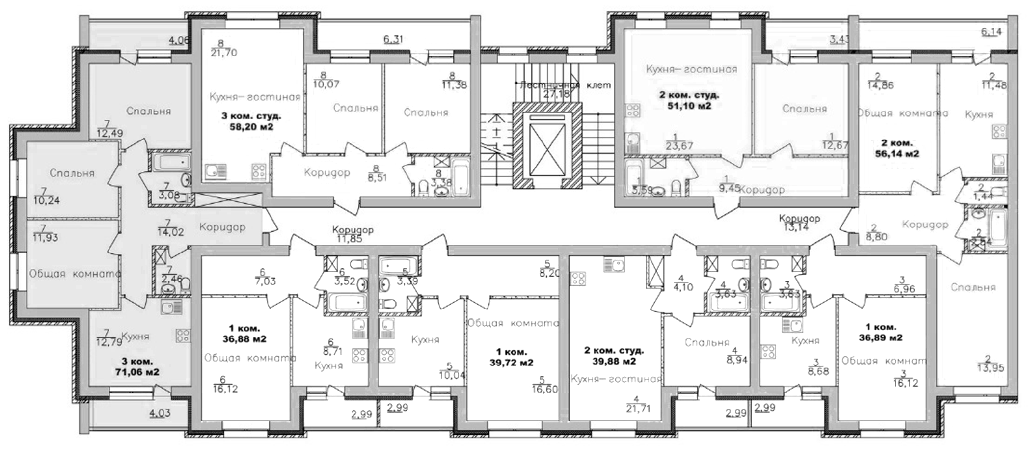
В продаже ,прекрасная 2-х комнатная квартира с предчистовой отделкой ,51,10м2. ЖК ,активно развивается ,два детских сада ,строящаяся школа. Современные детские и спортивные площадки.Нет проблем с парковками. Общественный транспорт ходит ,очень хорошо,15 минут до площади Маркса.













