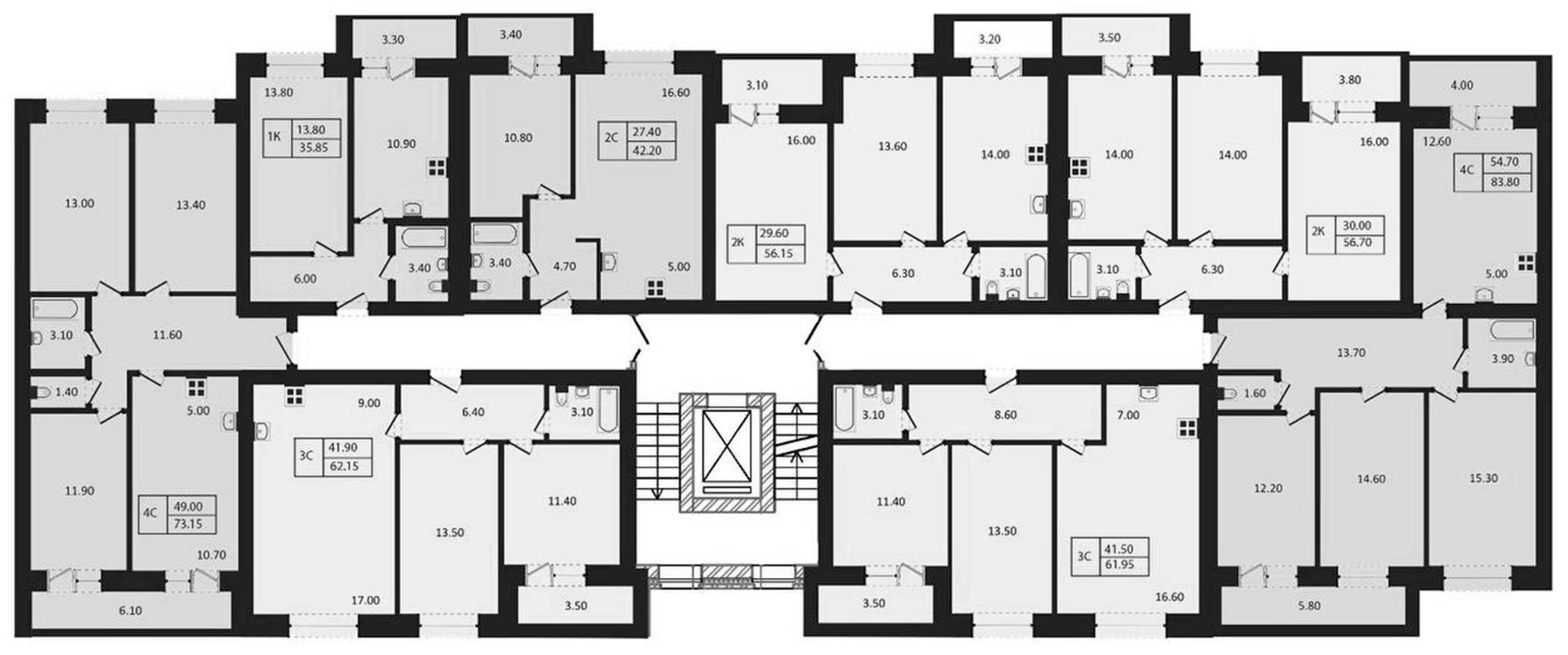
В продаже прекрасная 2-х комнатная квартира ,56,15м2 ,с просторной кухней 14м2 и подчистовой отделкой. 2-е лоджии 3,10м2 и 3,20м2 . Так же вы можете заказать ремонт ,от застройщика. Все дома в ЖК из кирпича. Новый ,строящейся ЖК Дивноград , оборудован современными детскими и спортивными площадками . В 5-ти минутах ходьбы от дома, современный детский сад . Так же в шаговой доступности ,активно строится школа. 25-ть минут езды на автомобиле и вы на площади Ленина ,в центре города. 15-ть минут езды на транспорте ,метро Маркса. подходит ,для людей любого возраста. При покупке ,действуют все программы государственной поддержки и программы лояльности.











